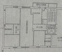
In palazzina signorile immersa nel parco condominiale. L' appartamento di quattro locali posto al piano primo è così composto: ingresso, soggiorno ampio con doppia esposizione, cucina abitabile con balcone. Una prima camera con bagno privato dotato di piatto doccia e attacco per la lavatrice. Il disimpegno conduce alla zona notte che ospita altre due camere da letto e il bagno padronale con vasca. La proprietà è completata dalle due cantine e dal box singolo. Riscaldamento centralizzato a consumo, le spese condominiali annue sono di circa di €. 2.000,00.
FINITURE ESTERNE: intonaco colore rosso
FINITURE INTERNE: pavimentazione in parquet prefinito colore grigio in tutti gli ambienti ad eccezione dei bagno e della cucina rifiniti in monocottura. Infissi in alluminio e persiane.
